

1.威尼斯市商业广场:
美国威利斯市商业广场位于威利斯市主干道FM1970上,地理位置优越,该广场线已满租。
2&3、威利斯市住宅开发项目:
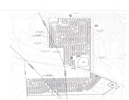
美国威利斯市住宅开发项目,位于休斯顿北部的威利斯市,离著名的伍德兰市仅15分钟路程是一个蓬勃发展的新兴城市。威利斯住宅项目规划将建成310套独栋别墅。

5、克利夫兰储备用地:
亿海美国公司在克利夫兰储备了360英亩的土地,为未来的多元化开发提供了发展空间。

7、克利夫兰市豪格社区:
豪格社区项目共占地615英亩,是麦金利公司立足打造“美丽克利夫兰”的绿色概念,设 立不同档次,多户型结构选择,成为集商业地产、水景、绿化、公司、休闲、健身、高尔夫、游乐为一体的高档社区。该综合项目和122英亩工业园项目都将对克利夫兰市的未来发展带来积极的推动作用,不仅增加当地税收,更重要的是吸引更多的国内国际投资者,成为推广克利夫兰市的重要窗口。

8、美西建材展示中心&社区设计中心:
美西建材展示中心:是服务麦金利公司中美建筑材料的进口和批发销售,同时将结合亿海集团总部下属的各门窗、玻璃等建材优势。除麦金利公司各项目自用外,还将面对大休斯顿地区的建筑商批发业务。此举将为麦金利公司在美的业务持续稳定地发展提供有利的保障。
9、哈夫曼购物中心及Huddle house 连锁餐厅:
该项目毗邻休斯顿湖,位于哈夫曼市主干道FM1960上,交通便利。该高档次购物中心的建筑面积达20000平方英尺,将填补哈夫曼区域的高档商业空白点。 Huddle house 连锁餐厅:结合传统和现代的烹饪方式,为顾客提供美国南部风格的食品。作为美国最受欢迎的早餐品牌,Huddle House全天候24小时为顾客服务,顾客在任何时间都可以品尝到自己喜欢的餐点。Huddle House秉承“顾客就是上帝”的原则,为顾客提供最温 馨最周到的服务。饭店成为一个在任何时间都可以让人们聚会的场所。50年以来,Huddle House仍以“无论何时想吃就吃得到“为理念运营并吸引了很多顾客。 今天,Huddle House已经面目一新,全新的模式化餐厅为Huddle House带来更高的盈利。
